MINI HOME
ISMERJE MEG MINI HOME HÁZUNKAT
MINI HOME HÁZ
Mini Home ház fejlesztésünk célja egy olyan kisméretű lakóegység létrehozása volt, mely magas műszaki tartalom mellett színvonalas építészeti koncepció is társul.
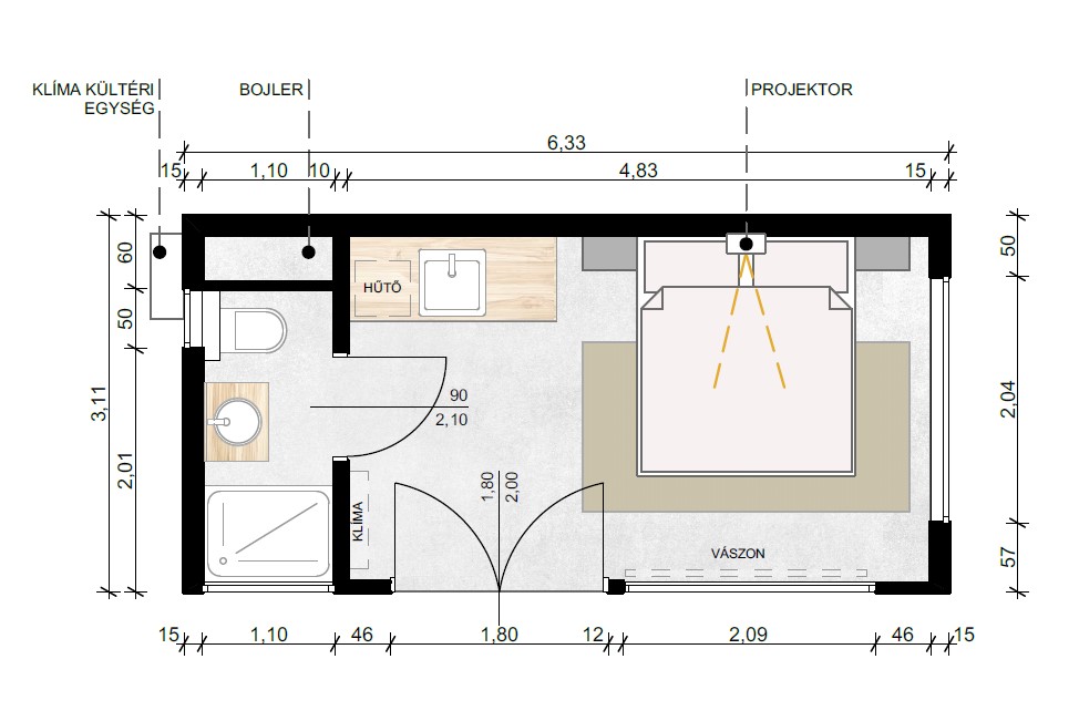
Mini Home házunk bruttó alapterülete 19,7 m2, mely funkcionálisan az alábbi egységeket foglalja magába: előtér, teakonyha, hálószoba, fürdőszoba és gépészeti tároló. Szerkezetét tekintve egyedileg hegesztett vas zártszelvény szerkezet, homlokzat- és tetőburkolata antracit klikkes fém síklemez.
BEFOGLALÓ MÉRET: 633 cm hosszú, 311 cm széles, 286 cm
MŰSZAKI TARTALOM
Mini Home ház fejlesztésünk célja egy olyan kisméretű lakóegység létrehozása volt, mely magas műszaki tartalom mellett színvonalas építészeti koncepció is társul.

MINIHOME FRONT OLDALI HOMLOKZAT

MINIHOME BAL OLDALI HOMLOKZAT

MINIHOME JOBB OLDALI HOMLOKZAT
- Az előtérben hűtő-fűtő beltéri klímaberendezés és kabátakasztó található. A falburkolatra van szerelve az elektromos padlófűtést kezelő termosztát is.
- A konyhában fagyasztós hűtőszekrény, indukciós mobil főzőlap, munkalapmegvilágítás, mosogató csappal foglal helyet.
- A hálóegységben motoros vetítővásznat projektorral, 160x200 cm méretű kényelmes ágyat, ágyneműtartóval, éjjeli szekrényeket olvasólámpával helyeztünk el.
- A fürdőhelyiségben üvegajtós zuhanyzó termosztátos zuhanycsapteleppel, fiókos tárolóval ellátott mosdószekrény mosdóval és csappal, beépített Geberit tartályos WC és belső öblítésű WC található.
- A törülköző akasztó fal mögött az építmény gépészeti elemei foglalnak helyet: Ariston 50 literes bojler.

MINI HOME - ALAPRAJZ
Belsőépítészeti megoldásait tekintve a MINI HOME háznál prémium minőségű anyagokat építettünk be, melyek esztétikailag és műszakilag és magas színvonalat képviselnek.
A MINI HOME ház kis méretéből adódóan alaprajzi elrendezését tekintve a funkcionalitás, és a belső tér legmagasabb szinten való kihasználása volt a fő célunk.
A MINI HOME ház homlokzati megoldásainál csaknem két teljes homlokzatot panoráma ablakokkal borítottunk a tökéletes kilátás érdekében.

